Soho Loft

New York City, USA

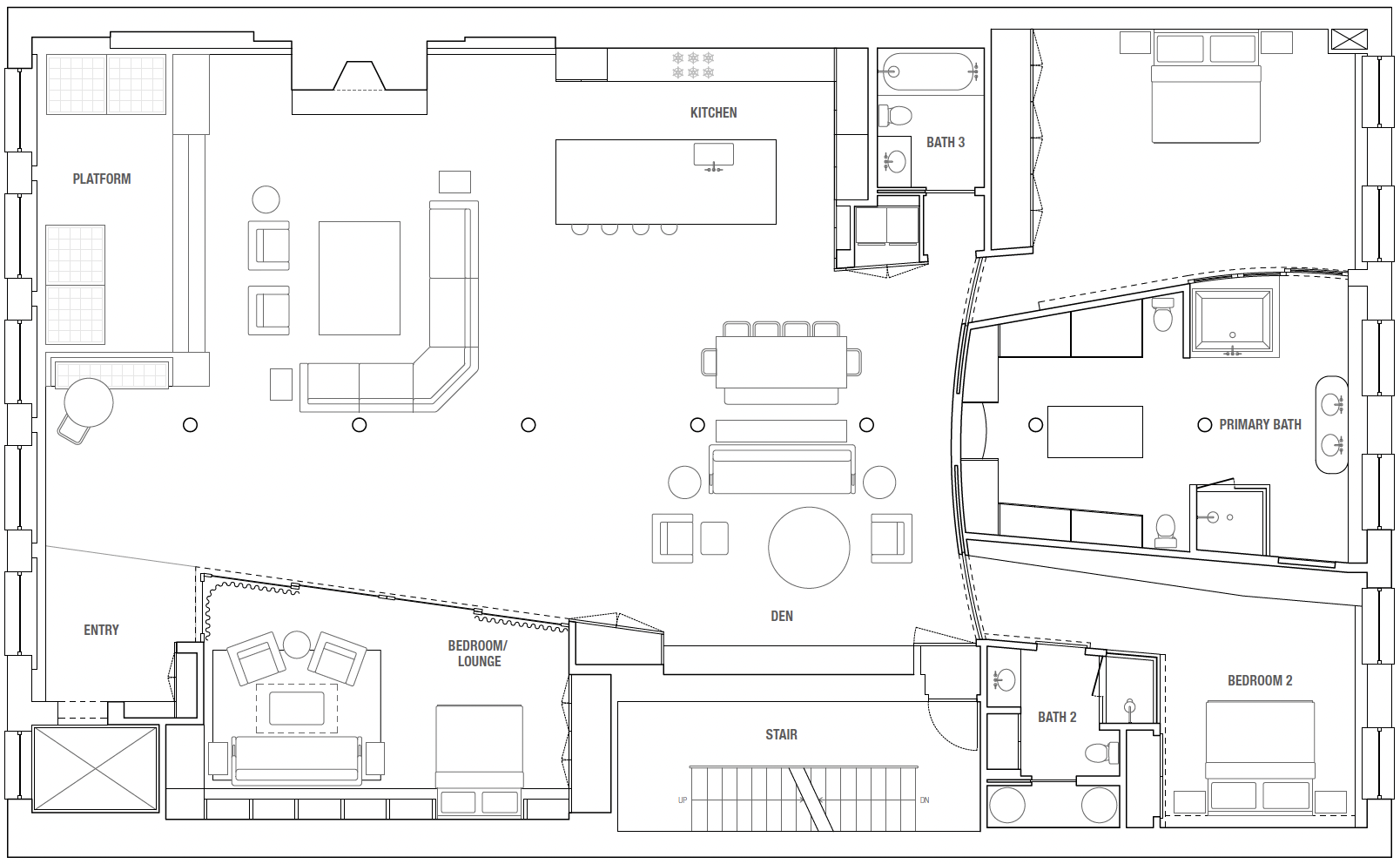
This SoHo loft renovation marks the beginning of a new chapter. Set within a landmarked cast-iron building, the project balances the gravitas of the home’s existing architecture with a renewed sense of openness, warmth, and ease. The goal was not reinvention, but recalibration. The elevated living room platform and kitchen are fully reworked to improve flow, functionality, and the movement of light through the apartment, while a new banquette beneath a window opposite the entrance introduces an intimate, light-filled place for gathering that anchors the space without compromising openness.

Elsewhere, the design retains much of the home’s inherent richness, including deep-toned millwork, while introducing subtle shifts that allow the interior to feel lighter and more fluid. Brightened ceilings, refined finishes, and softened contrasts lift the space without stripping it of its character. A glass-enclosed office is reimagined as a flexible bedroom, equipped with privacy curtains, closets, and a fold-away bed to comfortably accommodate overnight guests without compromising daily use. The result is a home that feels grounded yet forward-looking, honoring its architectural past while supporting a more expansive present within a storied New York interior.

Status: bidding

Previous
Previous

Tribeca Loft

Next
Next

Tenth Street Brownstone